News
NOI Techpark, via libera ai due nuovi moduli di espansione
Prima seduta dell’esecutivo fuori da Palazzo Widmann. Via libera ai due nuovi moduli D2 e D3: 20.000 metri quadrati a disposizione di aziende e laboratori. Riorganizzata la futura sede di Ingegneria.

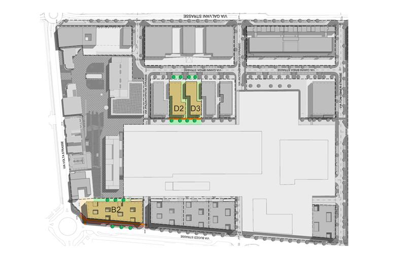
Prima riunione fuori da Palazzo Widmann nella storia della Giunta provinciale, che oggi (16 aprile) ha scelto il NOI Techpark per la propria seduta ordinaria. L’esecutivo ha così potuto approvare "in loco" due provvedimenti legati proprio al futuro del parco tecnologico: la pianificazione di due nuovi lotti edificabili (D2 e D3) con spazi per aziende e nuovi laboratori del centro Laimburg e la riorganizzazione dell’areale del NOI Techpark per ampliare gli spazi a disposizione della facoltà di Ingegneria (B2).
Espansione per privati e istituti di ricerca
"Tutte le superfici sono oggi utilizzate e alcune aziende si trovano già in lista di attesa per avere una sede al NOI Techpark. Di qui la necessità di espandere ulteriormente gli spazi disponibili destinati a privati e istituti di ricerca" ha detto il presidente Arno Kompatscher. Il finanziamento dei due moduli di espansione non comporterà alcuna modifica al bilancio provinciale, ma verrà interamente coperto da NOI Spa, incaricata dalla Giunta di partire con la progettazione.
Spazi per aziende e Laimburg
L'espansione avverrà verso sud, proseguendo oltre l'edificio D1 di via Ipazia, già destinato alle aziende e recentemente inaugurato. I due lotti di costruzione saranno realizzati uno dopo l'altro. Il primo modulo (D2) avrà un volume di 21.200 metri cubi e una superficie lorda di 10.100 metri quadrati, disponibile in primo luogo per le aziende private che potranno disporne come uffici in affitto. Sempre nel D2 verranno inoltre inseriti il laboratorio di lavorazione di frutta e verdura, il laboratorio di prodotti a base proteica e l'Open Lab del Centro di sperimentazione di Laimburg, che amplierà significativamente le proprie attività di ricerca presso il NOI Techpark.
Facoltà di Ingegneria al NOI Techpark
Inizialmente era stato pianificato di localizzare quest'ultimo laboratorio in un edificio lungo la via Buozzi (B3), a sud della progettata facoltà di Ingegneria della Libera Università di Bolzano (B2). Ma il piano edilizio per il lotto B2 è stato aggiornato nella seduta di oggi (16 aprile) proprio per adattarsi ai maggiori requisiti di spazio della nascente facoltà. Anziché nel lotto di costruzione B3, il nuovo areale di ricerca di Laimburg troverà spazio accanto alle aziende, nel lotto di espansione D2. Questo primo modulo di costruzione verrà completato nel 2023. Un anno dopo, nel 2024, è previsto il completamento del modulo successivo (D3). Con un volume di costruzione di 18.900 m³ e una superficie lorda di 9.400 m², l'edificio D3 offrirà ancora più spazio alle aziende private, mentre sempre qui verrà inserito un ristorante per gli studenti della Facoltà di Ingegneria.
Il distretto dell’innovazione
"Questi due moduli rientrano a loro volta in un piano generale ancora più esteso, con il quale andrà sviluppandosi a Bolzano Sud, in varie fasi successive di costruzione, un'area complessiva di ben 12 ettari. Può dirsi a ragione, insomma, che qui va sorgendo un vero e proprio distretto dell'innovazione" ha affermato Ulrich Stofner, direttore di NOI Techpark.
Materiali audio e video
Conferenza stampa decisioni di Giunta
Intervista decisioni di Giunta
USP


